Trilocale in vendita

Mori, Via Del Garda
€ 298.000
3 locali 3 locali
128 Mq 128 Mq
1 bagno 1 bagno

Trilocale in vendita

Mori, Via Del Garda

Descrizione annuncio

Proponiamo un trilocale di nuova costruzione, con ampi spazi e finiture di alta qualità.

Con una superficie di 130 mq e una prestazione energetica A4, questo appartamento garantisce un'efficienza energetica eccellente.

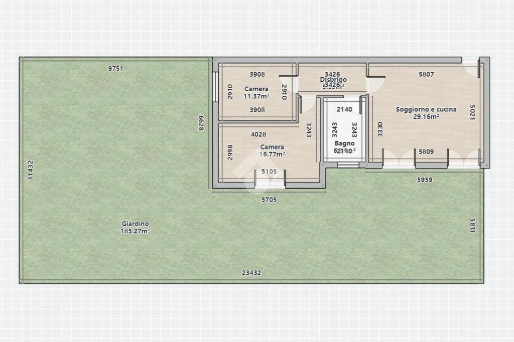
L'appartamento, situato al piano terra, si sviluppa in un ampio soggiorno e cucina open space con accesso al giardino di proprietà esposto a sud.

L'esposizione sud - est permette di godere di una luce naturale durante tutta la giornata, creando un ambiente luminoso e accogliente.

La zona notte è composta da una camera matrimonialecon uscita sul giardino privato, una camera doppia e un bagno finestrato.

Tutte le finiture dell'appartamento sono di alta qualità, con possibilità di personalizzazione, per adattarsi ai gusti e alle esigenze del cliente.

L'immobile è dotato di infissi in PVC triplo vetro, tapparelle elettriche in tutto l'appartamento, e un impianto di riscaldamento e raffrescamento a pavimento. Il sistema di deumidificazione e ventilazione meccanica controllata (VMC) assicura una qualità dell'aria ottimale, mentre l'impianto fotovoltaico centralizzato contribuisce alla riduzione dei consumi energetici.

I pavimenti sono in gres porcellanato di alta qualità, resistenti e facili da mantenere. L'appartamento è protetto da un portoncino blindato e dotato di videocitofono e sistema di antifurto, per garantire la massima sicurezza.

Il Residence è composto da 6 palazzine indipendenti ed è dotato di vialetti illuminati, un parco giochi per bambini, posti auto condominiali e un interrato con la possibilità di acquistare una cantina e un box auto singolo o doppio con portone motorizzato e pannelli metallici coibentati, garantendo sicurezza e protezione.

Al momento l'appartamento è in fase di finiture; esso viene venduto non arredato.

Situato in una zona tranquilla ma ben servita, offre la comodità di essere a pochi passi dal centro, senza rinunciare alla privacy e alla serenità.

Mori è un paese tranquillo e soleggiato, con circa 10.000 abitanti, che offre una posizione strategica tra la tranquillità della natura e la comodità dei principali servizi. A soli 12 km da Riva del Garda, una delle località più affascinanti del Lago di Garda, e a soli 8 km dal centro di Rovereto, è il luogo ideale per chi ama la bellezza del lago e delle montagne, pur vivendo in un contesto sereno e ben collegato.

Il paese è ben servito da mezzi pubblici, scuole di ogni grado, dal nido alla scuola secondaria, supermercati, farmacie, panifici, bar, ristoranti, tabacchini e banche, rendendo la zona perfetta per chi cerca una vita pratica e comoda, ma senza rinunciare alla tranquillità.

Mostra tutto

Nelle vicinanze

Trasporto pubblico Trasporto pubblico
Mori - Bivio Sud
Mori - Bivio Sud
190 m
Trasporto pubblico
390 m
Ricariche auto elettriche Ricariche auto elettriche
Mori SS240 | Neogy
960 m
Casello Rovereto Sud A22
2,9 Km
Scuole Scuole
B. Malfatti
1,6 Km
Scuola
2,7 Km
Farmacia Farmacia
Farmacia
1,1 Km
Ospedali Ospedali
Guardia Medica
1,3 Km
Supermercati Supermercati
Poli
180 m
Conad
610 m
Eurospin
850 m
Coop
1,3 Km
SAIT
1,5 Km
Negozi Negozi
Panificio Sartori
1,0 Km
Pasticceria Rigo
1,1 Km
Da Sandrina
1,1 Km
Negozi
1,5 Km
Ortofrutta F.lli Duchi
2,4 Km
Bar Bar
Bar Ice Caffè Garda
380 m
Bar
990 m
Bar Centrale
1,1 Km
La Torcia
1,1 Km
Fanum
1,5 Km
Ristoranti Ristoranti
Sotto Sopra
210 m
Da Neni
250 m
Zurigo
550 m
Hexenstube
910 m
Pizzeria Vecchia Mori
1,0 Km
Mostra tutto

Caratteristiche

Rif.:
61143372
Piano:
Basso di 3 con ascensore
Totale piani:
3
Posti auto:
1
Terrazzi:
1
Camere da letto:
2
Mostra tutto
Prezzo Prezzo
€ 298.000
Rata mutuo Rata mutuo
€ 1.405 / mese
Spese annue Spese annue
€ 0
Proponi il tuo prezzoProponi il tuo prezzo

Classe Energetica

A4
A4
A4
A4
A4
A4
A4
A4
A4
EP globale non rinnovabile:
271.61 kW h/m² anno
EP globale rinnovabile:
133.18 kW h/m² anno
EP invernale del fabbricato:
EP estiva del fabbricato:
Anno di costruzione:
2024
Riscaldamento:
Centralizzato
Tipo impianto:
A pavimento
Tipo alimentazione:
Pannelli

Ti interessa visionare l'immobile?

Fissa un appuntamento  Fissa un appuntamento

Richiedi informazioni

Clicca su Leggi per aprire l'informativa
* Questi campi sono obbligatori

Calcola il tuo mutuo

Semplice e senza impegno
Anticipo

( % )
Mutuo

( % )

pochi semplici passi

inserisci i tuoi dati
Questionario completato
Grazie per aver richiesto un appuntamento senza impegno con un nostro Consulente del Credito e Assicurativo.

Hai inserito correttamente tutti i dati necessari e a breve riceverai una e-mail con un link da convalidare per inviare i tuoi dati.
Affiliato
Studio Rovereto Snc
Via Don Antonio Rossaro, 15 38068 Rovereto (TN)

Il nostro staff


  • Brian Prati
    Affiliato

  • Giulia Bertolini
    Collaboratrice

  • Roberto Albanese
    Collaboratore

  • Alberto Naldi
    Collaboratore

  • Nicolò Toffanin
    Affiliato
Via Don Antonio Rossaro, 15 38068 Rovereto (TN)
Zona: Centro Storico - Nord e Alta Vallagarina
Mostra su mappa
Affiliato
Studio Rovereto Snc
Via Don Antonio Rossaro, 15 38068 Rovereto (TN)

2026 Tecnocasa Franchising S.p.A. - P. IVA 08365160152 - Via Monte Bianco 60/A 20089 Rozzano (MI). Ogni agenzia ha un proprio titolare ed è autonoma. Privacy policy | Policy utilizzo | Cookie policy