Trilocale in vendita

Rovereto, Via Monte Grappa
€ 440.000
3 locali 3 locali
113 Mq 113 Mq
2 bagni 2 bagni

Trilocale in vendita

Rovereto, Via Monte Grappa

Descrizione annuncio

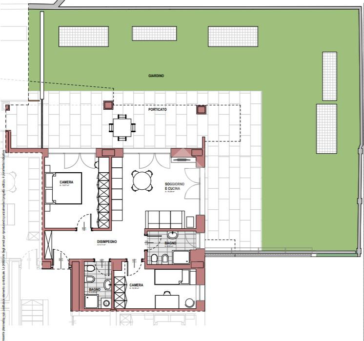
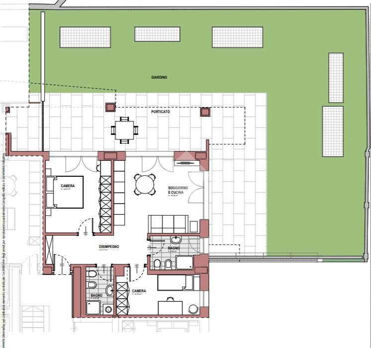
ROVERETO (TN) TRILOCALE IN VIA MONTE GRAPPA

Nel pieno centro di Rovereto, all’interno di un nuovo ed elegante condominio di ultima generazione, proponiamo un esclusivo appartamento al piano terra, una soluzione che coniuga tecnologia costruttiva, comfort abitativo e straordinari spazi esterni.

L’immobile è realizzato in Classe energetica A4+, garanzia di massima efficienza e ridotti consumi. È dotato di riscaldamento a pavimento centralizzato con conta calorie, tapparelle elettriche e infissi in PVC con triplo vetro, che assicurano un eccellente isolamento termico e acustico. All’interno dell’abitazione è già installato un sistema di deumidificazione per garantire un ambiente salubre e confortevole in ogni stagione. L’appartamento verrà consegnato completo di pavimentazioni, sanitari, piatto doccia, lavabo e rubinetteria, con finiture moderne e curate.

Punto di forza della proprietà è l’ampio giardino privato, uno spazio verde esclusivo ideale per momenti di relax, per famiglie o per chi desidera vivere l’esterno in totale privacy. Il porticato rappresenta una naturale estensione della zona giorno, perfetto per pranzi all’aperto o per creare un’elegante area living esterna.

L’ingresso si apre su un comodo disimpegno che distribuisce armoniosamente gli ambienti. Il soggiorno-cucina è luminoso e ben organizzato, con affaccio diretto verso il porticato e il giardino, creando una piacevole continuità tra interno ed esterno. La zona notte comprende due camere da letto, di cui una matrimoniale, progettate per offrire comfort e tranquillità. Completano la proprietà due bagni, elemento di grande praticità e valore.

Per questa soluzione è possibile beneficiare delle detrazioni fiscali previste dal Sisma Bonus, un importante vantaggio economico che rende l’investimento ancora più interessante. Sono inoltre disponibili box auto singoli o doppi e cantine acquistabili separatamente.

Una proposta esclusiva che unisce posizione centrale, innovazione tecnologica e spazi esterni di rara generosità. Per maggiori informazioni o per fissare una visita, siamo a disposizione.

Mostra tutto

Nelle vicinanze

Trasporto pubblico Trasporto pubblico
stazione di Rovereto
stazione di Rovereto
520 m
Via Paoli/Piazza 25 Aprile
Via Paoli/Piazza 25 Aprile
160 m
Via Manzoni/A.S.M.
Via Manzoni/A.S.M.
190 m
Ricariche auto elettriche Ricariche auto elettriche
MART Rovereto | Neogy
400 m
Eurospar Rovereto | EnelX
1,5 Km
Villa Lagarina Scrinzi | NEOGY
2,5 Km
EnelX EVA+ Villa Lagarina
2,6 Km
Scuole Scuole
Fabio Filzi
210 m
Ex Paolo Orsi
240 m
Scuola secondaria di primo grado "Alta Vallagarina" Volano
250 m
Istituto tecnicoeconomico e tecnologico "F. e G.Fontana"
280 m
Liceo Fabio Filzi
340 m
Farmacia Farmacia
Farmacia Comunale n°1
300 m
Parafarmacia CONAD
350 m
Thaler
500 m
Cobelli
580 m
Farmacia
600 m
Ospedali Ospedali
Ospedale Santa Maria del Carmine
1,4 Km
Pronto Soccorso
1,5 Km
Supermercati Supermercati
Conad
370 m
Poli
480 m
Supermercati Trentini
530 m
Coop
720 m
COOP Viale Trento
770 m
Negozi Negozi
Rigotto Sport
250 m
Non solo Pane
250 m
Morello
290 m
KIK
360 m
Smalto
410 m
Bar Bar
Bar
80 m
Caffè Grazia
250 m
Circolo operaio Paganini
340 m
RistoBar Sapori Emiliani
370 m
Viennese Stube
380 m
Ristoranti Ristoranti
Ristoranti
170 m
Margherita
180 m
Pizzeria Napoli
200 m
Trattoria da Pierino
310 m
Bella Rovereto
330 m
Mostra tutto

Caratteristiche

Rif.:
61182677
Piano:
Terra con giardino di 6 con ascensore
Totale piani:
6
Terrazzi:
1
Camere da letto:
2
Arredamento:
Assente
Mostra tutto
Prezzo Prezzo
€ 440.000
Rata mutuo Rata mutuo
€ 2.080 / mese
Spese annue Spese annue
€ 1.200
Proponi il tuo prezzoProponi il tuo prezzo

Classe Energetica

A4
A4
A4
A4
A4
A4
A4
A4
A4
EP globale non rinnovabile:
0.00 kW h/m² anno
EP globale rinnovabile:
0.00 kW h/m² anno
EP invernale del fabbricato:
EP estiva del fabbricato:
Anno di costruzione:
2024
Riscaldamento:
Centralizzato
Tipo impianto:
A pavimento
Tipo alimentazione:
Metano

Ti interessa visionare l'immobile?

Fissa un appuntamento  Fissa un appuntamento

Richiedi informazioni

Clicca su Leggi per aprire l'informativa
* Questi campi sono obbligatori

Calcola il tuo mutuo

Semplice e senza impegno
Anticipo

( % )
Mutuo

( % )

pochi semplici passi

inserisci i tuoi dati
Questionario completato
Grazie per aver richiesto un appuntamento senza impegno con un nostro Consulente del Credito e Assicurativo.

Hai inserito correttamente tutti i dati necessari e a breve riceverai una e-mail con un link da convalidare per inviare i tuoi dati.
Affiliato
Studio Rovereto Snc
Via Don Antonio Rossaro, 15 38068 Rovereto (TN)

Il nostro staff


  • Brian Prati
    Affiliato

  • Giulia Bertolini
    Collaboratrice

  • Roberto Albanese
    Collaboratore

  • Alberto Naldi
    Collaboratore

  • Nicolò Toffanin
    Affiliato
Via Don Antonio Rossaro, 15 38068 Rovereto (TN)
Zona: Centro Storico - Nord e Alta Vallagarina
Mostra su mappa
Affiliato
Studio Rovereto Snc
Via Don Antonio Rossaro, 15 38068 Rovereto (TN)

2026 Tecnocasa Franchising S.p.A. - P. IVA 08365160152 - Via Monte Bianco 60/A 20089 Rozzano (MI). Ogni agenzia ha un proprio titolare ed è autonoma. Privacy policy | Policy utilizzo | Cookie policy